





Apartament cu 2 camere de vanzare, situat în Baciu , zona Petrom , intr-o locatie foarte bine pozitionata, cu acces rapid catre principalele puncte de interes din zona. Regim imobil: P+5E+ER
apartament situat la ET 7.
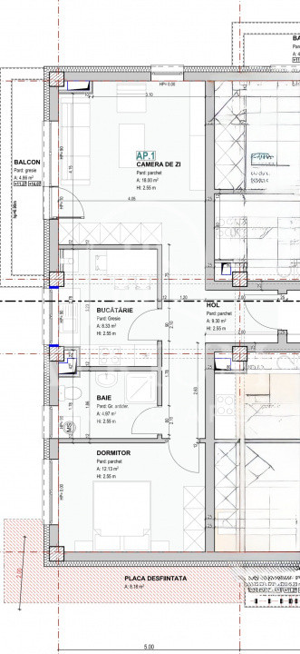
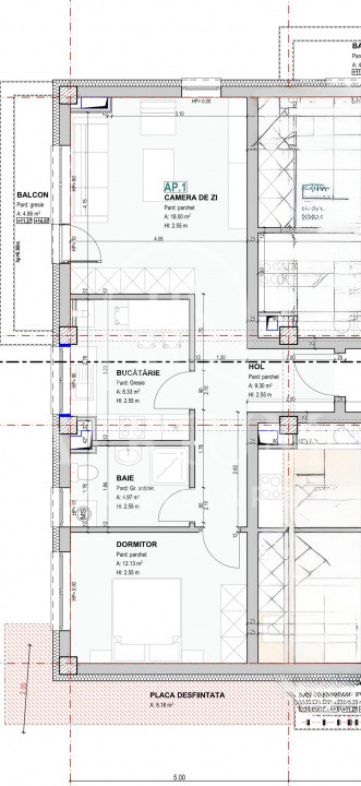
Suprafata totala: 99.4mp utili.
Compartimentare: 3 dormitoare, living cu bucatarie, hol, 2 bai, balcon 11.7mp
Orientare: nord-vest
Incalzire: centrala pe imobil cu distribuire prin tavan.
Stare: semifinisat.
Detalii: finisajele se alege în funcție de cerințele clientului din catalogul oferit de dezvoltator, uși si ferestre REHAU.
Parcare: apartamentul nu dispune de parcare, insa se poate cumpara separat (5000 euro ). Prin amplasare si configuratie, apartamentul este potrivit atat pentru locuinta proprie, cat si pentru investitie. Preţurile de mai jos sunt valabile pentru achiziţia cu 5% avans si diferenţa la CF. Pentru informatii suplimentare sau pentru programarea unei vizionari, va rugam sa ne contactati. ID: P253833